Piec kominkowy Austroflamm CODY ceramika z podstawą na drewno – wydajny, praktyczny i elegancki
Piec kominkowy Austroflamm CODY ceramika opalany drewnem posiada konstrukcję stalową. Obudowa wykonana ze stali lakierowanej w kolorze antracytowym z bokami z ceramiki. Komora spalania wyłożona jest jasnym materiałem ceramicznym Keramottem, który ma właściwości izolacyjne i bardzo dobrze akumuluje ciepło. Keramott nagrzewa się szybko i długo oddaje ciepło, co zmniejsza zużycie drewna. Palenisko wyposażone w ruszt żeliwny oraz wyjmowany pojemnik na popiół.
Duże drzwi żeliwne z poziomą, zaokrąglaną szybą zapewniają wspaniałą wizję ognia. Bardzo praktyczna podstawa o wysokości 30 cm umożliwia przechowywanie drewna pod piecem.
System czysta szyba – kurtyna powietrzna przebiega wzdłuż całej powierzchni drzwi, odgradzając szybę od ognia i zapobiegając zabrudzeniom. System dopalania spalin zwiększa sprawność urządzenia i zmniejsza emisję CO2.
Piec wolnostojący Austroflamm CODY posiada przyłącze powietrza do spalania z zewnątrz. Możliwe jest podłączenie od tyłu rurą o średnicy 125 mm. Regulacja spalania odbywa się za pomocą jednego cięgna na przepustnicy powietrza. Piec przystosowany jest do domów wyposażonych w wentylację mechaniczną – rekuperację.
SYSTEM PAMIĘCI CIEPŁA HMS
HMS (Heat Memory System) to opatentowany przez Austroflamm system magazynowania i równomiernego oddawania ciepła do pomieszczenia. Specjalny materiał o dużej gęstości szybko pochłania ciepło (magazynowanie do 8 godzin), a następnie stopniowo oddaje je do pomieszczenia, zapewniając komfortową temperaturę i zapobiegając przegrzewaniu.
CECHY:
- obudowa ze stali lakierowanej w kolorze antracytowym z bokami z ceramiki
- drzwi żeliwne
- szyba zaokrąglana gięta
- palenisko wyłożone jasnym materiałem ceramicznym Keramottem
- palenisko z rusztem i pojemnikiem na popiół
- system dopalania spalin
- odprowadzenie spalin z tyłu lub od góry
- system czysta szyba – kurtyna powietrzna przebiega wzdłuż całej powierzchni drzwi
- możliwość doprowadzenia powietrza do spalania z zewnątrz od tyłu
- przystosowany do pracy w domach z wentylacją mechaniczną – rekuperacją
- spełnia normę DiBt
- praktyczna podstawa do przechowywania drewna o wysokości 30 cm
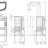
WYMIARY I WAGA:
- Wysokość [mm]: 850
- Szerokość [mm]: 800
- Głębokość [mm]: 431
- Wysokość komory spalania [mm]: 347
- Szerokość komory spalania [mm]: 476
- Głębokość komory spalania [mm]: 230
- Średnica wylotu spalin [mm]: 130
- Wysokość przyłącza spalin [mm]: 760
- Waga [kg]: 171
- Waga HMS [kg]: 62,6
MOC:
- Nominalna moc [kW]: 8
- Min./Maks. moc [kW]: 3,5 / 9
- Pojemność ogrzewanego pomieszczenia [m³]: 82 - 210
Klasa energetyczna A+
DANE DLA KOMINIARZA:
- Przepływ masowy spalin [g/s]: 7,8
- Temperatura spalin [°C]: 256
- Minimalne ciśnienie przy nominalnej mocy [Pa]: 12
- Przy 0,8-krotnej mocy [Pa]: 10
Uwaga! Przed zakupem, proszę bezwzględnie skontaktować się telefonicznie ze sklepem w sprawie dostępności wybranego wariantu urządzenia grzewczego, koloru i wersji podłączenia.
